VetCAD
Подать объявление

Внутреннее и наружное газоснабжение

Андрей

размещено: 04 Декабря 2024
обновлено: 31 Марта 2026
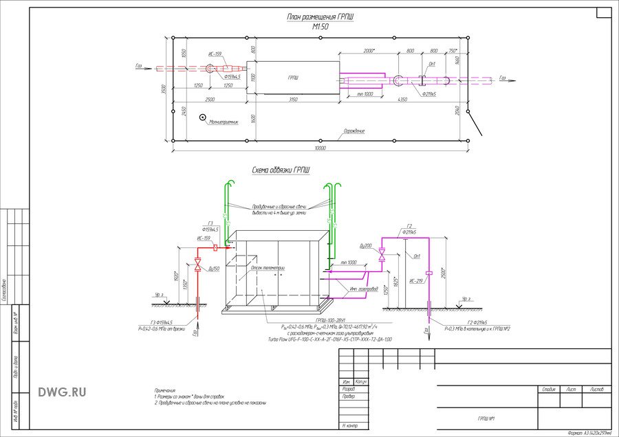
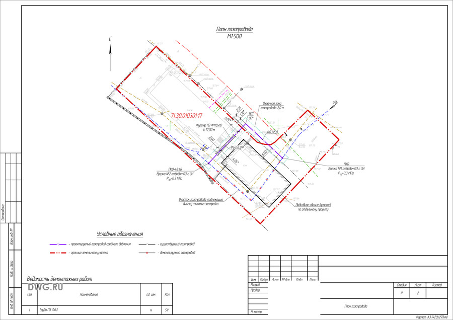
Изготовление проектной документации на объекты капитального строительства и линейные объекты по ПП РФ №87 и документации на техническое перевооружение ОПО сетей газораспределения и газопотребления - от ИЖС до котельных и межпоселковых газопроводов: ИТП, котельные, зерносушилки, наружные газопроводы, ШРП, узлы учета и т.д.
Внутреннее и наружное газоснабжение1
Внутреннее и наружное газоснабжение2
Внутреннее и наружное газоснабжение3

Написать сообщение

Вы не авторизованы.
Авторизоваться