VetCAD
Подать объявление

Проектирование системы отопления и ГВС для квартиры 86 м²

Данил

размещено: 17 Октября 2025
Ищем проектировщика системы отопления и ГВС для квартиры 86 м²
Описание объекта:
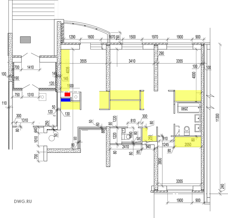
— Трехкомнатная квартира на 1 этаже, общая площадь 86 м²
— Имеется план помещений с размерами
— Выполнен черновой ремонт, готова к монтажу инженерных систем

Задача: Разработать комплексный проект системы отопления и ГВС с последующей визуализацией для передачи монтажной бригаде.

Техническое задание для проектирования:

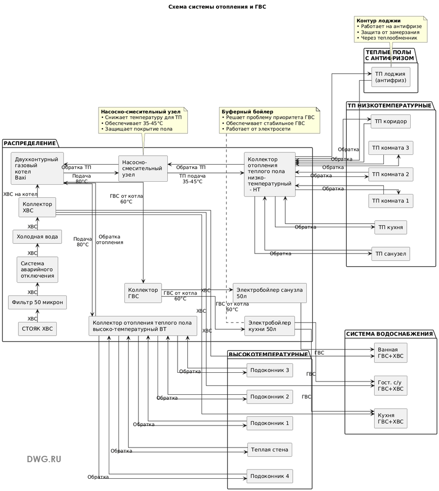
1. Система отопления:
Безрадиаторная схема с распределением по зонам:
— Теплые водяные полы во всех помещениях (6 основных зон + лоджия)
— Теплые подоконники (4 шт)
— Теплая стена в ванной комнате (замена полотенцесушителя)

Оборудование имеющееся и предполагаемое:
— Двухконтурный газовый котел Baxi
— Два распределительных коллектора:
— — Низкотемпературный для теплых полов (8 выходов)
— — Высокотемпературный для подоконников и теплой стены (5 выходов)
— Насосно-смесительный узел
— Контур лоджии с антифризом через теплообменник

2. Система ГВС:
— Буферная схема с электрическим водонагревателем 50 л
— Тонкий бойлер (предпочтительно Thermex Surf Slim 50U или аналог)
— Коллекторная разводка ГВС на 3 точки
— Коллектор ХВС

3. Требования к проекту:
Обязательные разделы:
— Технико-экономическое обоснование решений
— Теплотехнический расчет помещений
— Гидравлический расчет системы
— Схемы подключения оборудования
— План размещения коллекторов и трассировки труб
— Спецификация оборудования и материалов

Визуализация:
— 3D-визуализация скрытых инженерных систем
— Поэтапные схемы монтажа
— Узлы подключения критичных элементов
— План-схема до заливки стяжки

4. Исходные данные:
— Предоставляем план квартиры с размерами
— Высота потолков: 2.98м
— Наличие газового стояка
— Стандартные теплопотери 1 этажа

Требования к исполнителю:
— Опыт проектирования безрадиаторных систем отопления
— Наличие выполненных проектов аналогичной сложности
— Понимание принципов работы насосно-смесительных узлов
— Знание современных материалов и оборудования
— Готовность курировать проект на этапе монтажа

Что ожидаем в результате:
— Полный пакет проектной документации
— Визуализацию для монтажников
— Спецификацию с артикулами оборудования
— Рекомендации по монтажу и настройке
— Консультацию при передаче проекта монтажной бригаде

Сроки и бюджет:
— Обсуждаются индивидуально
— Рассмотрим различные варианты сотрудничества
— Готовы рассмотреть как комплексный проект, так и отдельные этапы

Для отклика просим предоставить:
— Портфолио аналогичных проектов
— Предварительный план работ
— Коммерческое предложение
— Информацию о сроках выполнения
Проектирование системы отопления и ГВС для квартиры 86 м²1
Проектирование системы отопления и ГВС для квартиры 86 м²2

Написать сообщение

Вы не авторизованы.
Авторизоваться