VetCAD
Подать объявление

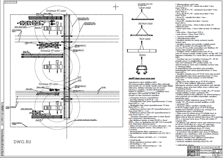
Разработка ППР, ТК, ОТК. ВОР, смета.

Разработка ППР, ТК, ОТК различной сложности. Подготовка ВОР, сметной документации. Быстро, качественно.
Работаю удаленно, самозанятый. Опыт работы более 10 лет.

Связь через мессенджеры WhatsApp/telegram, по телефону.
Разработка ППР, ТК, ОТК. ВОР, смета.1
Разработка ППР, ТК, ОТК. ВОР, смета.2
Разработка ППР, ТК, ОТК. ВОР, смета.3

Написать сообщение

Вы не авторизованы.
Авторизоваться