VetCAD
Подать объявление

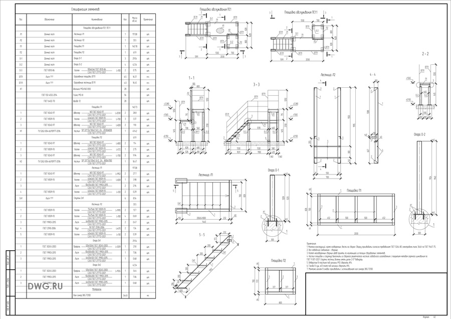
Разработка КЖ, КМ, АС, КР

Николай

размещено: 11 Декабря 2025
Мы, сплоченный коллектив из 5 опытных инженеров-конструкторов строительного отдела, выполняем проектную и рабочую документацию промышленного и гражданского типа. Выполняемые разделы: КР, КЖ, КМ, АС.
Работаем с ведущими компаниями промышленной отрасли:
- Газпром
- Роснефть
- Транснефть
- Еврохим
- РусАгро и др.

Нами были выполнены проекты разного типа:
- торговые центры
- складские большепролетные здания
- парки резервуаров
- эстакады трубопроводов и кабеленесущих систем
- площадки автоналива и ЖД налива нефтепродуктов, навесы к ним
- различные вспомогательные здания и сооружения (насосные, серверные, площадки обслуживания и т.д.)
- реконструкции объектов

Все необходимые конструкции просчитываем в Base, SCAD, Lira-САПР 2018, 2022, 2024

Роботу сдаем в срок, есть выходы на смежные отделы проектирования. Сложность и срочность обсуждается.

Номер телефона указан раннее: WhatsApp, Telegram, MAX, телефон
Разработка КЖ, КМ, АС, КР1
Разработка КЖ, КМ, АС, КР2
Разработка КЖ, КМ, АС, КР3

Написать сообщение

Вы не авторизованы.
Авторизоваться