VetCAD
Подать объявление

Разработка проектов по направлению пром. и комм. теплоэнергетика

Евгений

размещено: 13 Января 2026
обновлено: 03 Февраля 2026
Предлагаю услуги по разработке проектной и рабочей документаций по по следующим разделам :
- тепловые сети, паропроводы;
- индивидуальные тепловые пункты (ТМ, АТМ, УУТЭ);
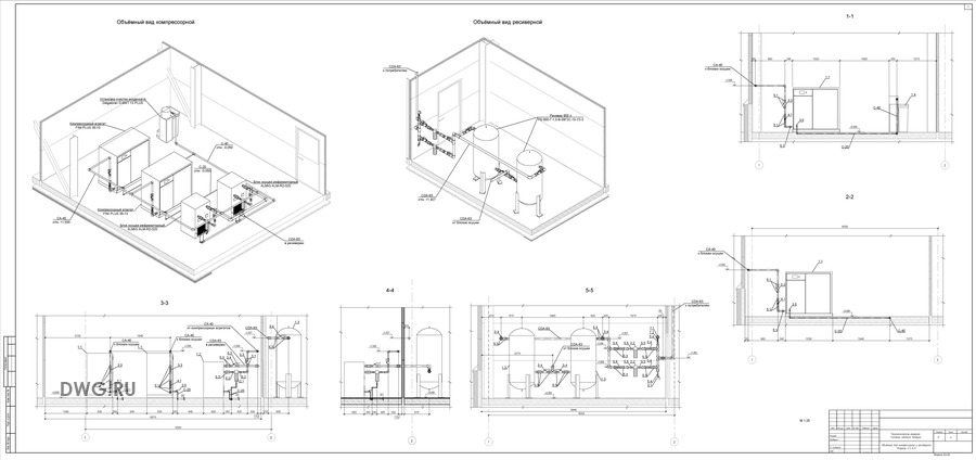
- воздухоснабжение низкого, среднего и высокого давлений, компрессорные станции;
- ГСН и ГСВ;
- разводка трубопроводов технических газов по производственным корпусам;
- сжиженные углеводородные газы (СУГ);
- станции газификации и хранения технических газов (азот, аргон, углекислота, кислород и тд.);
- склады ГСМ (все виды ГСМ);
- заправочные станции(ГСМ и газовые);
- энергоцентры (дизельные генераторы, газопоршневые генераторы) и т.п.
Сопровождение и защита разработанных проектов в соответствующих инстанциях(по договорённости, удалённо). Имеется опыт прохождения в государственных и частных экспертизах, включая ГлавГосЭкспертизу. Сопровождение в процессе монтажа (по договорённости, удалённо).
Опит работы в проектировании 9 лет
Разработка проектов по направлению пром. и комм. теплоэнергетика1
Разработка проектов по направлению пром. и комм. теплоэнергетика2
Разработка проектов по направлению пром. и комм. теплоэнергетика3

Написать сообщение

Вы не авторизованы.
Авторизоваться