Сайт проектировщиков
Авторизоваться
Форум
Блоги
Скачать
Библиотека
Галерея
Объявления
Организации
Кунсткамера
Вакансии
Резюме
DWG
»
Объявления
»
Требуются услуги
»
Разработка проекта ЭОМ
Подать объявление
Разработка проекта ЭОМ
+792XXXXXXXXX
показать номер
Написать сообщение
Александр
размещено: 02 Февраля 2026
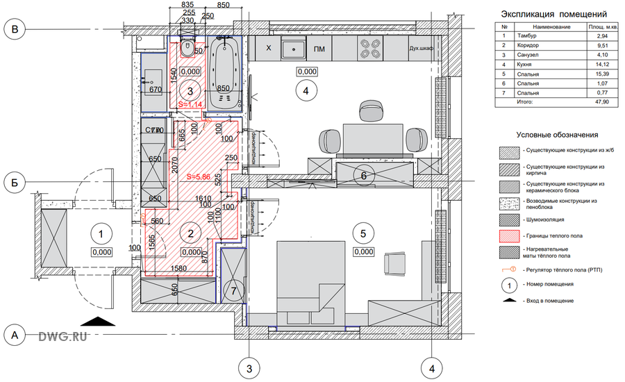
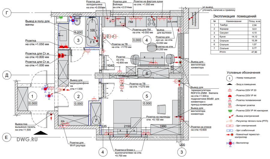
Необходимо разработать проект ЭОМ для однокомнатной квартиры.
Написать сообщение
Вы не авторизованы.
Авторизоваться