Сайт проектировщиков
Авторизоваться
Форум
Блоги
Скачать
Библиотека
Галерея
Объявления
Организации
Кунсткамера
Вакансии
Резюме
DWG
»
Объявления
»
Требуются услуги
»
Требуется сделать раздел ОВ частного дома
Подать объявление
Требуется сделать раздел ОВ частного дома
+791XXXXXXXXX
показать номер
Написать сообщение
Тимур
размещено: 30 Марта 2026
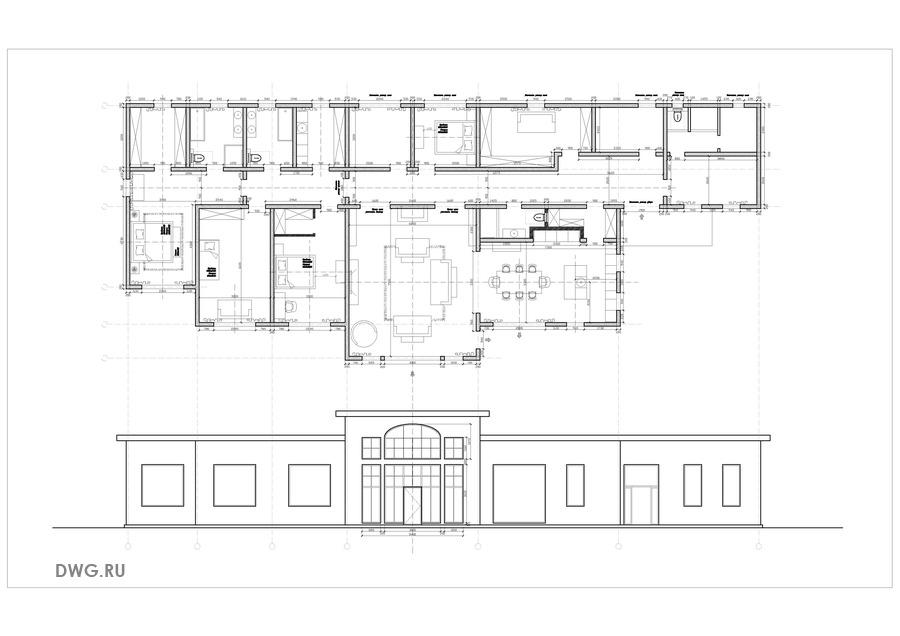
Требуется выполнить раздел Отопление Вентиляция жилого дома 450 кв.м план этажа в приложении. Исходники есть в автокад и Ревит. Сроки не торопят, пока принципиален вопрос цены.
Написать сообщение
Вы не авторизованы.
Авторизоваться