Сайт проектировщиков
Авторизоваться
AutoCAD
Динамические блоки
Документация
Настройка
Программы
Программирование
Прочее
Проектирование
Программы
Договорная и сопутствующая документация
Нормативная документация
Литература
Серии
Типовые проекты
Технологические карты
Технические данные
Прочее
САПР
Документация
Прочее
Чертежи, модели
Библиотеки элементов
Строительство
Машиностроение
Образование
Прочее
Разное
Литература
Программы
Прочее
DWG
»
Скачать
»
AutoCAD
»
Динамические блоки
»
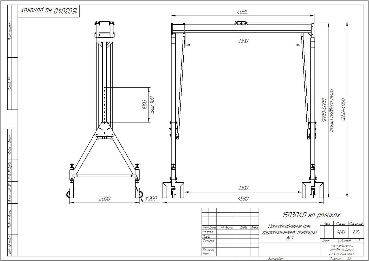
Приспособление для грузоподъемных операций 300 кг. ( портал)
Приспособление для грузоподъемных операций 300 кг. ( портал)
1 оценка
Комментарии (0)
Скачать
Kashpirovskiy
размещено: 01 Декабря 2025
Приспособление для грузоподъемных операций 300 кг. ( портал).
Масса 400 кг.
Материал - Алюминий
Порядок:
от старых к новым
0.07
МБ
СКАЧАТЬ